Обяви За нас Контакти
Продава 3-СТАЕН
град София, Хаджи Димитър
182 500 €
356 938.98 лв.

(1 984 €, 3 880.37 лв./m2)
Не се начислява ДДС
Коригирана в 17:41 на 6 януари, 2026 год.
Обявата е посетена 931 пъти.
Площ:
92 m2
Етаж:
7-ми от 15
Строителство:
Тухла, Ще бъде въведен в експлоатация 2025 г.

Описание на имота:


ПРЕД АКТ 16!
Простор, удобство и стил в сърцето на София нов тристаен апартамент в кв. Хаджи Димитър!
Титан Пропъртис - офис бул. България има удоволствието да Ви представи нов, модерен тристаен апартамент, в един от най-бързо развиващите се и предпочитани райони на столицата - кв. Хаджи Димитър. Мястото е комуникативно , в близост до спирки на градски транспорт, детски градини, училище, магазини, супермаркети, метростанция Хаджи Димитър, медицински център и други удобства. Бърз и лесен достъп до булевард Владимир Вазов.

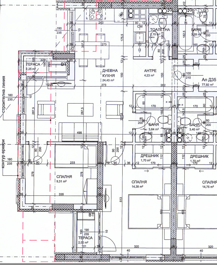
Апартаментът е разположен на седми жилищен етаж от 15 етажа. Имотът разполага с площ от 92 кв.м. Разпределението както следва е антре, дневна с кухненски бокс, две спални, едната от които с дрешник , баня с тоалетна , тоалетна и две тераси. Отоплението е предвидено да бъде на ток. Изложението е север / запад. Жилището се предлага на шпакловка и замазка, предоставяйки възможност за персонализация на интериора. Предоставя идеалната възможност за новите собственици да създадат своя уютен и стилен дом в един от най-желаните райони на градa. Сградата е на етап Акт 15 и се очаква да бъде въведена в експлоатация (Акт 16) края на 2025г.
За ваше улеснение прилагаме архитектурен проект на апартамента. За повече информация или оглед на това и други предложения, моля, свържете се с нас на посочения телефон. Реф. Номер: 2082450
Особености
Тухла
Асансьор
Контрол на достъпа
Саниран
За контакт:
0895671248
Брокер:
Теодора Еленчева
0895671248
Още оферти от брокера: Продава | Дава под наем | Купува | Наема
Агенция:
ТИТАН ПРОПЪРТИС ПРОДАЖБИ
0895671248
ТИТАН ПРОПЪРТИС ПРОДАЖБИ logo
В imot.bg от 2024 г.
titanteam.imot.bg
Адрес:
област София, гр. София, бул. 'България' 113, ап. Офис 1
ИЗПРАТИ ЗАПИТВАНЕ
ИЗПРАТИ ЗАПИТВАНЕТО

Продава 3-СТАЕН
град София, Хаджи Димитър
Обява: 1c174886071332982

182 500 €
356 938.98 лв.
(1 984 €, 3 880.37 лв./m2)

Не се начислява ДДС
ЗАПАЗИ ОБЯВАТА

Местоположение: град София, Хаджи Димитър

Допълнителни данни за имотите в района и сравнение с други райони

Покажи

Период

и 1 месец

* Средните цени са определени чрез медианна стойност