Обяви За нас Контакти
Продава 2-СТАЕН
град София, Левски
139 913 €
273 646.04 лв.

(1 749 €, 3 420.75 лв./m2)
Не се начислява ДДС
Публикувана в 16:22 на 9 февруари, 2026 год.
Обявата е посетена 75 пъти.
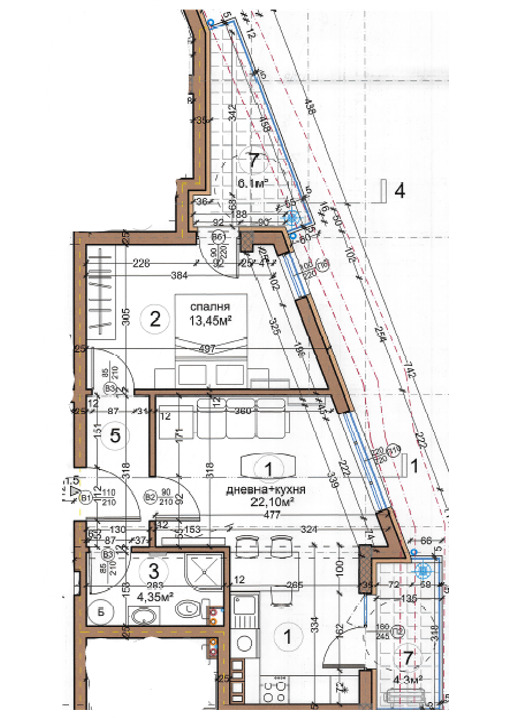
Площ:
80 m2
Етаж:
2-ри от 6
Строителство:
Тухла, Ще бъде въведен в експлоатация 2027 г.

Описание на имота:


Титан Пропъртис - офис бул. България има удоволствието да Ви представи двустаен апартамент в ж.к. Левски - комуникативно място, в близост, спирки на градски транспорт, детски градини, училища.
Апартаментът е разположен на втори етаж от шест етажа. Сградата е в начален етап на строителство и се очаква да бъде въведена в експлоатация (акт 16) през март 2027г. Имотът разполага с площ от 80 кв.м. Разпределението както следва е: входно антре, хол с кухненски бокс, спалня, баня с тоалетна,складово помещение и две тераси. Изложението е изток. Отоплението е предвидено да бъде на ток. Жилището се предлага на шпакловка и замазка, предоставяйки възможност за персонализация на интериора.Към имота има възможност за покупка на гараж на допълнителна цена. В сградата предлагаме и други апартаменти на различна цена и различна квадратура.

За повече информация или оглед на това и други предложения, моля, свържете се с нас на посочения телефон. Реф. Номер: 1186
Особености
Тухла
Асансьор
Контрол на достъпа
За контакт:
0895671248
Брокер:
Теодора Еленчева
0895671248
Още оферти от брокера: Продава | Дава под наем | Купува | Наема
Агенция:
ТИТАН ПРОПЪРТИС ПРОДАЖБИ
0895671248
ТИТАН ПРОПЪРТИС ПРОДАЖБИ logo
В imot.bg от 2024 г.
titanteam.imot.bg
Адрес:
област София, гр. София, бул. 'България' 113, ап. Офис 1
ИЗПРАТИ ЗАПИТВАНЕ
ИЗПРАТИ ЗАПИТВАНЕТО

Продава 2-СТАЕН
град София, Левски
Обява: 1b177064692395614

139 913 €
273 646.04 лв.
(1 749 €, 3 420.75 лв./m2)

Не се начислява ДДС
ЗАПАЗИ ОБЯВАТА

Местоположение: град София, Левски

Допълнителни данни за имотите в района и сравнение с други райони

Покажи

Период

и 2 месеца

* Средните цени са определени чрез медианна стойност